Комплексное сопровождение упаковочного производства
Предпродажный сервис
- Проводим общее планирование производственной площадки с учетом требований заказчика или на основе предоставленных размеров помещения.
- Помогаем подобрать наиболее подходящее оборудование с учетом таких параметров, как производительность и стабильность работы. Если характеристики существующих моделей не позволяют одновременно обеспечить требуемую производительность и стабильность, предлагаем оптимальное решение с учетом реальных задач производства.
- Предоставляем все технические характеристики и письменные условия договора, чтобы клиент получил полное представление о конфигурации оборудования и его рабочих параметрах.
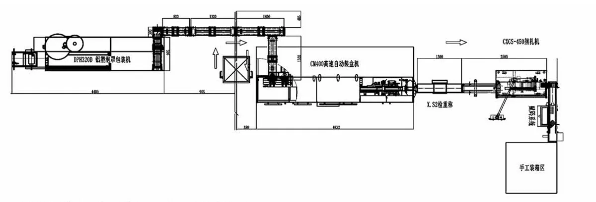
- Готовим чертежи производственной линии и техническую документацию, обеспечивая комплексное понимание схемы размещения и состава оборудования.
Поставка

- Обеспечиваем строгое соблюдение утвержденных технических характеристик на всех этапах производства и информируем клиента о ходе выполнения заказа в соответствии с производственным графиком.
- Заказчик своевременно предоставляет необходимые упаковочные материалы и комплектующие, чтобы обеспечить своевременный монтаж и пусконаладку оборудования.
- Предоставляем инструкции по эксплуатации, техническому обслуживанию и очистке, а также стандартные рабочие процедуры для корректной и безопасной работы с оборудованием.
Послепродажный сервис

Доставка и пусконаладка
- После прибытия оборудования выполняются монтаж и пусконаладочные работы, чтобы обеспечить его полную интеграцию в производственную линию и выход на проектную производительность.
- Проводится обучение по эксплуатации оборудования, настройке параметров, ежедневному обслуживанию и устранению неисправностей. В течение гарантийного срока предоставляются бесплатный ремонт и запасные части, а после его окончания сохраняется техническая поддержка и возможность поставки комплектующих.
Поддержка по запасным частям
- Все поставляемые комплектующие маркируются лазером с идентификационными номерами, что позволяет точно подбирать замену и упрощает установку деталей.
Последующее сопровождение
- Комплексная система постпродажного сопровождения обеспечивает непрерывную техническую поддержку.
- Подробная фиксация каждого обращения и выезда помогает оперативно выявлять и решать возникающие вопросы.
Реагирование на неисправности и ремонт
- Первичная диагностика проводится по телефону или видеосвязи.
- Если проблема серьезная или требуется выезд на место, специалисты направляются в зависимости от ситуации, а связанные с этим расходы предварительно согласовываются с заказчиком.
